“南部城区”土地建筑规划方案被成功纳入新伊森堡市议会章程

3月,由 AS + P 制定的第55号土地建筑规划方案获新伊森堡市议会批准并被纳入市议会章程。
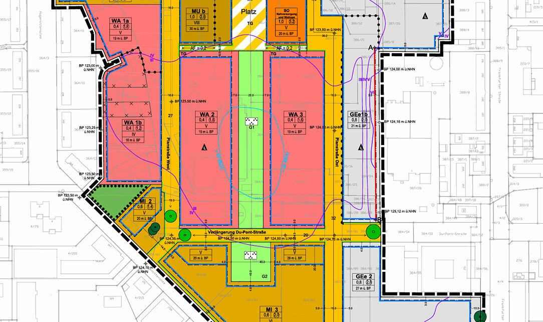
多年来,市中心南部城区许多地段都处于闲置状态,土地商业利用率有限。 基于此种情况,新伊森堡市发布政府委托项目进行土地建筑总体规划。该委托项目从2012年持续至2014年,分为若干规划程序,并积极吸收公众参与。 在该总体规划的基础上,AS + P制定了从Schleussnerstraße 街道,Hugenottenallee 大街到Frankfurter Strasse 街道的区域建筑规划方案。
该区域未来将被打造成混合功能区,将为约1,800人提供居住空间,并提供约2,000个工作岗位。 这里将集办公楼和住宅楼、餐饮场所和文化设施以及公共空间为一体,为居民和游客提供高质量的居住、办公、休闲空间。新伊森堡市政府表示,首批建筑将于2023年落成。了解项目信息https://www.as-p.de/projekte/project/bebauungsplan-nr-55-stadtquartier-sued-neu-isenbur-1081/show/
