莱茵兰普法尔茨西德意志地产银行
Mainz, 1998 - 2000
新建办公楼;在受邀参与的国际比赛中获得一等奖
主要使用领域
建筑学
总楼面面积
19000 qm
规划期
1998 - 2000
客户
Sedum Grundstücksverwaltungsgesellschaft mbH & Co. Vermietungs KG

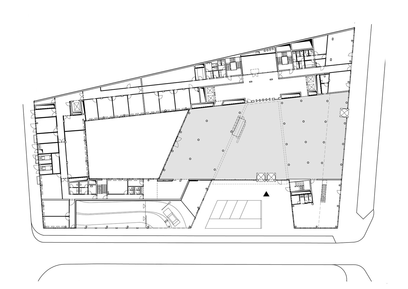
底层轮廓
西德意志地产银行 (Westdeutsche ImmobilienBank) 和莱茵兰普法尔茨州立银行 (Landesbank Rheinland-Pfalz) 的新行政大楼在美因茨的中心呈现开放和优雅风致。AS+P 的方案在 1997 年受邀参与的竞争程序中胜出。六个完整层和一个交错层形成了类似于"9"的轮廓形象。该设计的特点在于参考了现有建筑线和精致透明且轻盈的立面设计。除透明建筑之外,互动式楼宇技术同样是该建筑的特色。银行特别重视广泛的用途和功能灵活性,同时希望拥有一个有代表性的位置、一个环保的节能理念和高水平的工作场所质量,同时能够获得充分的采光。立面结构的一个技术特征是新颖的平行旋转角窗,可以实现无风感的通风,同时降低外部噪音,且首次以这种规模实现。

从 Löwenhofstrasse/Große Bleiche 交叉口查看

接待大厅

内院

夜间的入口区