AS+P entwickelt im Rahmen städtebaulicher Planungen ein neues Wohnquartier in Neuperlach

Bezahlbarer Wohnraum, großzügige Grünflächen und eine neue Infrastruktur für das ganze Stadtviertel: In Neuperlach, einem Stadtteil im Südosten Münchens, soll ein neues Stadtquartier mit rund 750 Wohneinheiten, Kindertagesstätten, sozialen Einrichtungen, Einzelhandel und Gewerbe entstehen. AS+P betreut das Verfahren und ist zudem für die begleitenden städtebaulichen Planungen zuständig.
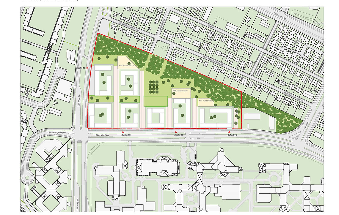
Die HIH Real Estate GmbH beabsichtigt, auf dem „Nordparkplatz“ des Siemens-Areals in Neuperlach Baurecht für die Errichtung eines Wohnquartiers mit rund 750 Wohneinheiten zu schaffen. Neben Wohnungen sollen Kindertagesstätten, soziale Einrichtungen wie zum Beispiel ein Seniorentreff, Einzelhandel und Gewerbe wie zum Beispiel ein Ärztehaus entstehen. Auf dem südlich angrenzenden Siemens-Areal werden zudem Parkhäuser errichtet; die derzeit bestehenden Parkplätze sollen auf den „Ostparkplatz“ verlagert werden.
Bereits seit 2014 begleitet AS+P die HIH bei diesem Vorhaben, um auf einer fachlich fundierten Basis in den Planungsprozess einzusteigen. Gemeinsam mit der Stadt München werden Ideen zur städtebaulichen Entwicklung des „Nordparkplatzes“ erarbeitet. Hierzu wurden unter anderem vertiefende städtebauliche Testentwürfe erstellt, die mögliche Bebauungsstrukturen aufzeigen und auf deren Grundlage sich die städtebaulichen Kennwerte für eine künftige Entwicklung ableiten lassen. Parallel werden ein Aufstellungs- und Eckdatenbeschluss vorbereitet, welche die Basis für weitere Planungsschritte des Vorhabens sein sollen. Im weiteren Verfahren wird ein zweiphasiger, offener städtebaulicher und landschaftsplanerischer Wettbewerb durchgeführt, den AS+P betreuen wird.
Da das Informieren der Bürger ein wesentlicher Bestandteil des Verfahrens ist, wurde zur Vorbereitung des Eckdatenschlusses auch eine Einwohnerversammlung durchgeführt. Weitere Veranstaltungen folgen im Rahmen des Planungsverfahrens. Gleichzeitig dient eine neu eingerichtete Website als Plattform für den Informationsaustausch zwischen allen Beteiligten.
